
LUSH RETREAT

Most individuals desire a short escape from reality every so often. Staycations are usually the go-to solution, especially for those who aren’t big on travelling overseas.
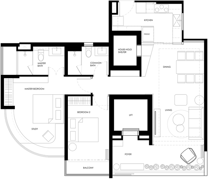
For the owners of this two-bedroom condominium, employing a bit of ingenuity to transform their new home into a luxury resort is an even more viable option.

The entrance of this apartment opens up to the balcony, overseeing a line of trees and the vast, blue sky; creating a sense of spaciousness and adding an element of surprise to the experience of those visiting for the first time.
Various details, such as the addition of an elegant bronze mirror and a bar table for reading and dining, were included to amplify the natural, soothing effects that came with the space.


In the all-neutral coloured living room, surprises can be found around every corner. A pitched roof design resides in the ceiling while the storeroom is hidden away by the diagonal, timber-clad wall that draws one into the kitchen.
Meanwhile, the soft glow of the cove lighting creates an intimate environment for everyone gathering in the room.


The kitchen takes on a similar palette as the previous spaces and is an enclosed, almost cave-like location for the owners to dabble in what they love – cooking.


The master bedroom, on the other hand, takes on a slightly darker colour scheme. It uses black wood along the perimeter of the curved bay window to literally frame up the panoramic view outside.
Cove lighting was installed above the window and evokes the very image of the setting sun from beyond the horizon when one looks out at the right time.






